Kies hier uw tekening
15 tekeningen beschikbaar
15 tekeningen beschikbaar
TURFCO WideSpin 1530 Transportband, pan and Rollers
TURFCO WideSpin 1530 Snelheidsregeling voor de spinner en spruitstukventielblok
TURFCO WideSpin 1530 Optionele hydraulische vloeistofkoeler Onderdeel van de montagekit van de wagen 86163
TURFCO Widespin 1530 Trechter ophijsbeugel
TURFCO Widespin 1530 Meetpoort
TURFCO Widespin 1530 spinner
Turfco Widespin1530 hydraulisch systeem voor de montage van de spinner
TURFCO Widespin 1530 hoofdhydraulisch systeem
TURFCO Widespin 1530 Besturingskast
TURFCO Widespin 1530 Verzamelventielblok
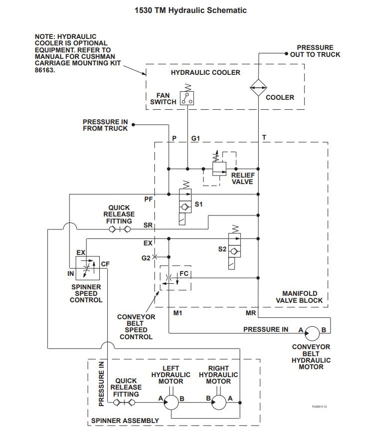
TURFCO Widespin 1530 TM Hydraulisch schema
TURFCO Widespin 1530 Elektrisch systeem
TURFCO Widespin 1530 Elektrisch systeem 2
TURFCO Widespin 1530 stickers
TURFCO Widespin 1530 Optionele sleufvullende bevestiging